£175,000 Reduced Price for quick sale.

Was...(£200,000 CY (bottom line)
If agent’s and legal’s are used add£20,000 CY + VAT.
Exchange of property in the UK would be considered.)

€ 299,468

“Spring Lodge”

Skarinou Village
Larnaca
Cyprus

This unique two story architect designed split level property situated in quiet private corner of the village contains 400 sq meters approximately under tile, situated 10 minutes from Governors and Mazatos beaches, and 20 minutes Larnaca, Larnaca Airport, Nicosia and Limassol.
The property was built by English in 1982, with beam and column concrete construction from rock foundations, with blending stone exterior to match the village, UK specifications contained horizontal and vertical D.P.C.'s dual drainage, 24” walls and thermal glass on sun walls, with upper and lower access, plus over 1,000 gal water storage pressurized when required.

Owner builder now 80 years of age will swap for UK (Yorkshire) if required.

First Floor.

Is used as residents quarters, containing large kitchen, dining room, very large double lounge, very large rear bedroom, and seconded bedroom complete with on suit and covered balcony area with views of hills, which has never changed for 25 years.

Access direct on to upper street level and carport.
Air-conditioning, central heating and a working stone fire place in the large living room.

First Floor.

Is used as residents quarters, containing large kitchen, dining room, very large double lounge, very large rear bedroom, and seconded bedroom complete with on suit and covered balcony area with views of hills, which has never changed for 25 years.

Access direct on to upper street level and carport.
Air-conditioning, central heating and a working stone fire place in the large living room.

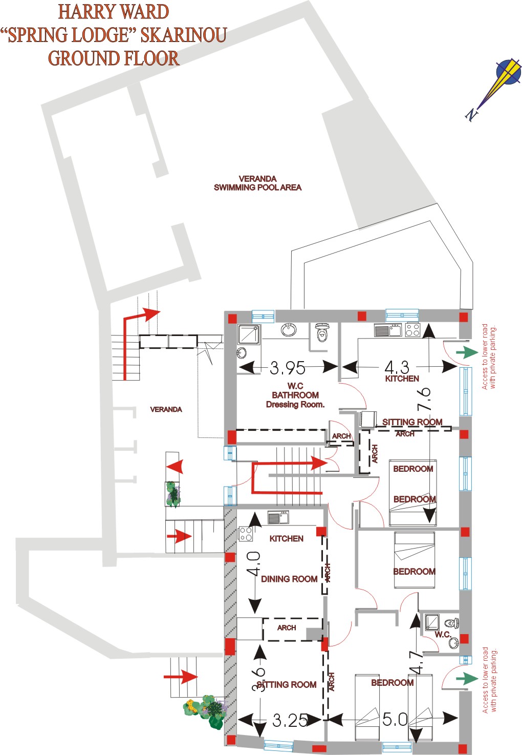
Ground floor.

This floor is the same size as the first floor and is used as two tourists self-catering suites. The “Zimbali” suite has 2 bedrooms on suite, lounge, kitchen, air-conditioning and has its own access to lower road with private parking.

The seconded suite the “Tamara” has one bedroom with dressing room, including separate toilet and 2 wash basin shower room, a lounge, kitchen diner. This again has its own access to lower road with private parking.

Split area first floor studio apartment.

Over the arched area of the pool approximately 25 ft x 12 ft is an area used as maids quarters. This area fully fitted out with shower room, kitchen and lounge also has its own access via, patio and rear gate.

Stairway installed which leads to roof area that has the possibility to be used for roof sun deck.

Exterior.

The areas outside at present are used by the residents and any guests, who each have their own access.

Pool area.

The pool area is paved in grey Greek slate type crazy paving, with pool and American spa (Jaccuzzi) to seat 4/6 with temperatures settings up to 36 degrees centigrade. Around the pool are two large lounging shaded areas, and an area around the pool for sun bathing. This pool area is very quite and private with its own 8 ft. wall enclosure.
It also has its own access gate to the lower road.

Contact for more details and viewing
For further details and viewing please contact the owner:
Harry Ward
 (00357) 24 323224
0044 01702 332 503
Email: springlodge@cytanet.com.cy
OR: robbie.j.ward@gmail.com
Poll and outside area

To Main Index Page