SOLD

“No1. Maroni Heights”

Demitries Place
Maroni Village
Cyprus

A detached house set in the countryside, 2 minutes from the beach on the outskirts of Maroni Village. The property has beautiful views of the sea, valley, village and surrounding fields and hills.

The property is two years old and has been built with full building permissions and licences. It comprises of three bedrooms all with fitted wardrobes, two bathrooms and one separate washroom. An open plan living room, dining area, fully fitted kitchen. Separate office / study. The property has full central heating and air conditioning throughout.

The house is entered through the covered porch through a hardwood panelled front door. This leads directly to the dining area, on the left is the main stairway leading to the first floor and a washroom with WC situated up a few of the steps off this stairway.

To the right of the dining area is a fully fitted kitchen, which includes:- Maytag Stainless Steel American Fridge Freezer, Bosch Stainless Steel Dishwasher, Bosch Silver Washing Machine, Neff Stainless Steel built in double oven, Neff Stainless Steel ceramic touch sensitive hob, Neff stainless Steel extract hood and Miele Bean to cup stainless steel built in coffee machine. All these goods are one year old. The kitchen has windows on three sides giving a good view of the garden and incoming road to the property. It also has a set of patio doors giving direct access to the pool and outside veranda areas.

Following through the dining room, with its own patio doors giving direct access to the pool and outside veranda areas, we come to the large living room area, which has a central square archway leading to the rest of the living room with an open working fireplace. The living room has again a set of patio doors giving direct access to the pool and outside veranda areas.
From the dining area, a door set under the stairway leads to a large office or study area. All areas have ample windows all with pull down fitted blinds. All floors and washroom are tiled.

 

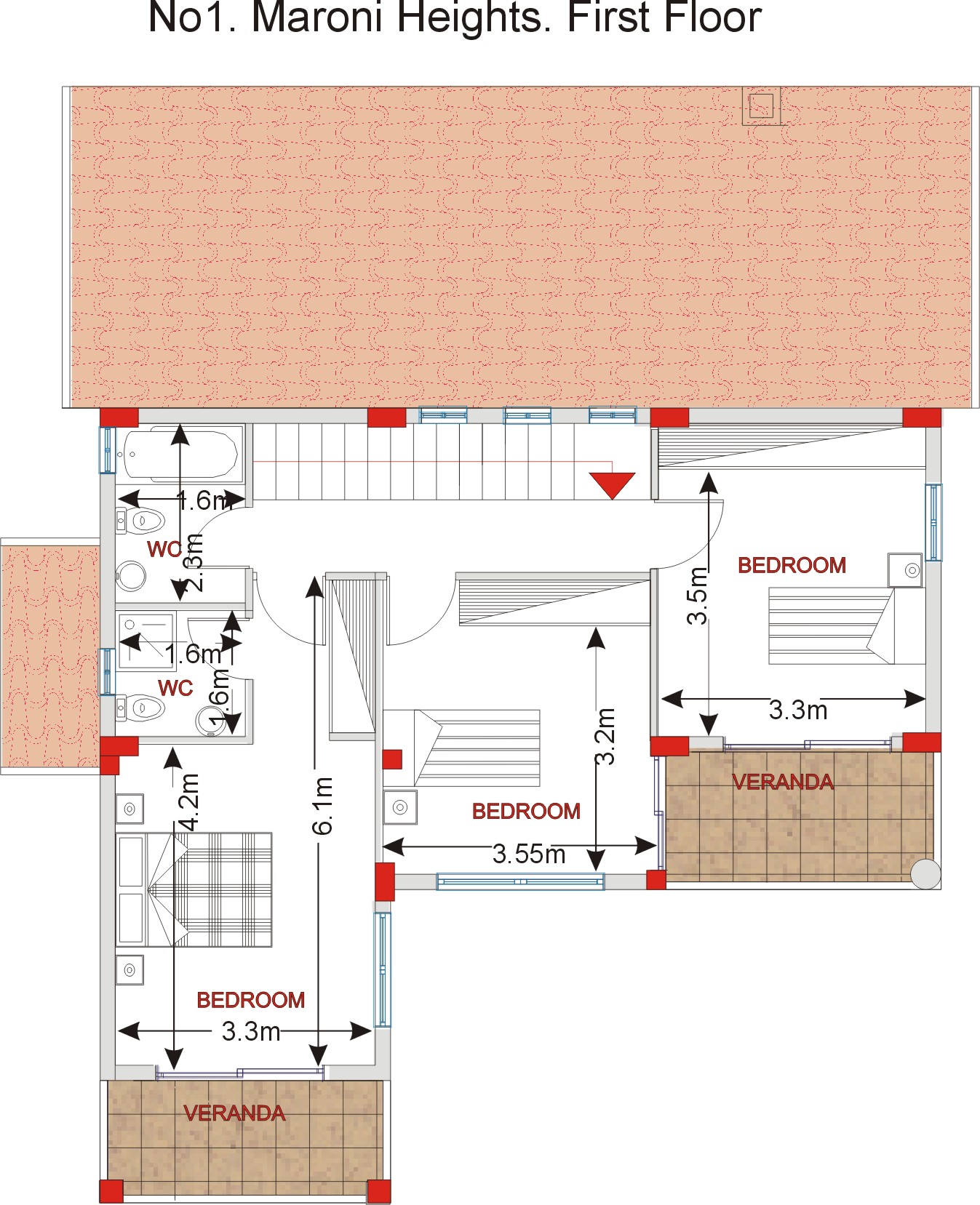
The 'L' shaped stairs lead up to a landing that leads round to your right with access to each of the bedrooms. First on the left is bedroom 2 with fitted wardrobes, this bedroom has a window over looking the pool and garden, also patio doors with access to an outside veranda area.

Next on the left is bedroom 3 with fitted wardrobes, this bedroom has a window over looking the pool and ground floor veranda area, also patio doors with access to an outside veranda area. Further down the landing on your left is the master bedroom, (bedroom 1) with fitted wardrobes and also its own on suite shower room. This bedroom has a window over looking the pool and garden, patio doors with access to its own outside veranda area. Next at the end of the landing, facing the front of the house is the family bathroom, with a bath. W.C. and hand basin, window facing the front of the property.

All windows have pull down fitted blinds. The samuel heath stainless steel fittings in the bathroom are also included. All floors and bathrooms are tiled and the stairway is marble with painted steel handrails and spindles.

The land size of the plot is approximately 1200 square metres.

The outside of the property has tiled walkways, a large tiled veranda with tiled steps leading to the swimming pool area which also has a fully tiled surround.
The swimming pool is a lazy Greek 'L' design with integral walk down steps for safe entry and exit. The property has outside lighting around the pool area, the verandas and front entrance.
The garden is fully enclosed with galvanised chain link fencing and has box hedging planted around three and a half sides, the area of the garden around the pool is planted with various native plants and yucca's.

The boiler room has access from the parking area outside the property. The concrete parking area and driveway, entered through by double gates to left of the property. A pedestrian gate situated opposite the front door with a concrete walkway that leads to the front porch and main entrance door.

 

View Site Plans

To Main Index Page